
空き家を活用して、家事も仕事も両立
店舗付き住宅
■ こんな空き家におすすめ
・2階建て住宅
・庭付き住宅
・小ぶりの住宅、平屋でもOK
どんな住宅でも利用する方とのマッチング次第で活用できます。
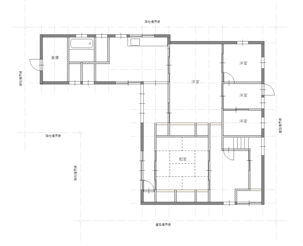
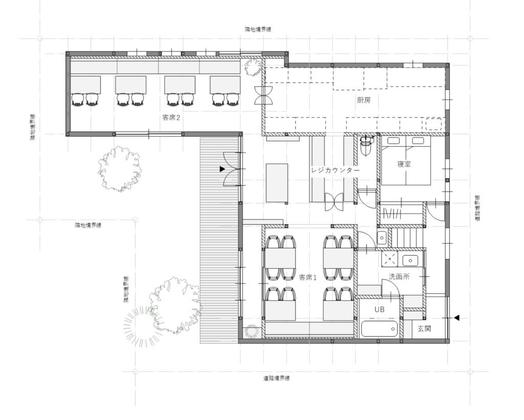
■ プラン内容
1階を店舗、2階を住居に改装し、
家族と一緒に暮らしながら働ける「店舗付き住宅」に。
- 子どもに目が届く環境で働ける
- 通勤時間ゼロで家事育児と両立できる
- 自宅の庭で野菜づくり・遊び場づくりも可能
- 地方なら“駐車場問題”も解決しやすい
(広い庭を駐車場にできる)
田舎暮らしと自営業の良さを組み合わせた、
新しいライフスタイルの提案です。
■ 空き家所有者のメリット
- 店舗+住居という複合利用で買い手・借り手が見つかりやすい
- 売買でも賃貸でも相談可能
- 物件の価値が大幅に上がる
「広すぎて誰も住まないのでは?」という悩みも、 “店舗付き住宅”という需要が解決します。


Planning




