【デザイン提案】空き家を活用した自然の中のパン屋さん
古代のコムギ

中古物件だった住宅を、古代小麦を使ったパン屋さんへと店舗改装。
▸ 古代小麦を使ったパンをより多くの人に知ってもらいたい。
▸ 主にオーガニック思考の40、50代女性に来ていただきたい。
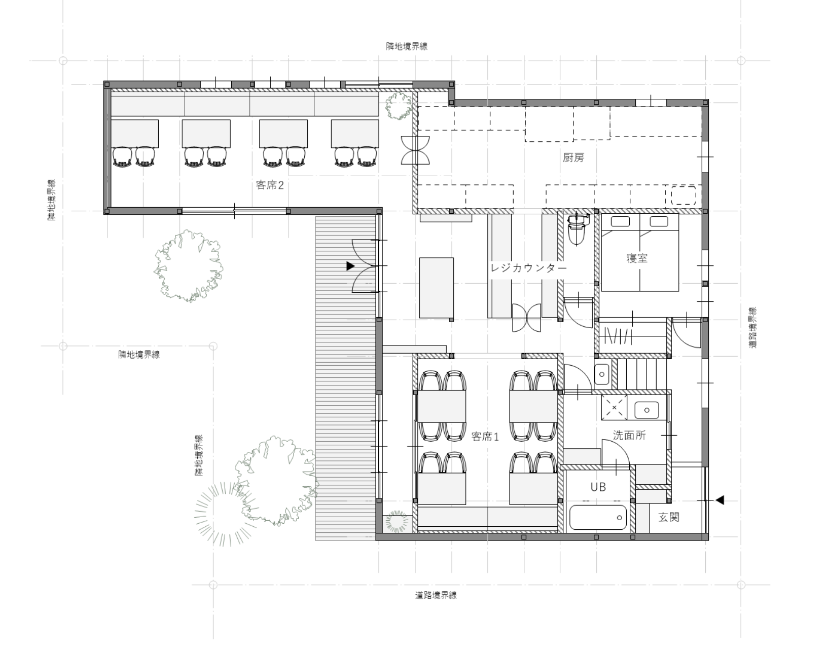
▸ パンの販売だけでなく、ランチの提供も行うため、客席も多く作りたい。
数千年前、エジプトの地でファラオも食したと言われる「エンマー小麦」。エンマー小麦は、品種改良されておらず、その原種の力強さ、栄養素の高さが魅力です。
テーマは「自然×エジプト」。 自然の小麦のおいしさを、自然感あふれる店内で食べていただきたいと思いデザインしました。
また、エンマー小麦がエジプト由来であることから、エジプトの要素をプラス。店内で食事をしている最中にも古代小麦のイメージを感じられるデザインとしました。
内装デザイン

店内に麦を装飾。壁面には麦の壁画を描き、古代小麦を内装からも感じられるようにしています。
店内に麦を装飾。壁面には麦の壁画を描き、古代小麦を内装からも感じられるようにしています。


天井は木目を互い違いになるようにして個性的に。
自然素材である麻やラタンを使用することで、
落ち着いた印象にしています。
天井は木目を互い違いになるようにして個性的に。
自然素材である麻やラタンを使用することで、落ち着いた印象にしています。


店内に入ってすぐ、楽しいと思っていただけるように、パンがずらっと並んでいるのが見えるようにしました。
パンが主役となるように店内の色味を抑え天板を木目とすることでパンがおいしそうに見えるようにしています。
天井に布を吊るし、麦畑をイメージした装飾としました。
店内に入ってすぐ、楽しいと思っていただけるように、パンがずらっと並んでいるのが見えるようにしました。パンが主役となるように店内の色味を抑え天板を木目とすることでパンがおいしそうに見えるようにしています。天井に布を吊るし、麦畑をイメージした装飾としました。

外観デザイン

白い壁に壁画を描き、遠くからでも「麦を使ったお店」が見えるようにしています。
看板もエイジング加工で世界観を外観から]伝えられるようにご提案させていただきました。
白い壁に壁画を描き、遠くからでも「麦を使ったお店」が見えるようにしています。
看板もエイジング加工で世界観を外観から伝えられるようにご提案させていただきました。
ロゴ制作

ブランドコンセプトからご提案。
穀物を荒らすネズミを捕るため、ナイル川流域の農地を守る「害獣駆除の神」として愛された、
家庭、出産、守護の神バステトをモチーフとしました。
ブランドコンセプトからご提案。
穀物を荒らすネズミを捕るため、ナイル川流域の農地を守る「害獣駆除の神」として愛された、
家庭、出産、守護の神バステトをモチーフとしました。

販促物デザイン

紙袋とスタンプカードのデザインをしました。
エジプトが起源である「古代小麦」から発想を経つつ、自然感のある雰囲気に合わせたデザインとしました。
紙袋とスタンプカードのデザインをしました。
エジプトが起源である「古代小麦」から発想を経つつ、自然感のある雰囲気に合わせたデザインとしました。

WEBサイトデザイン

Before & After Image
外観シミュレーション
Before

After

内装シミュレーション
Before

After

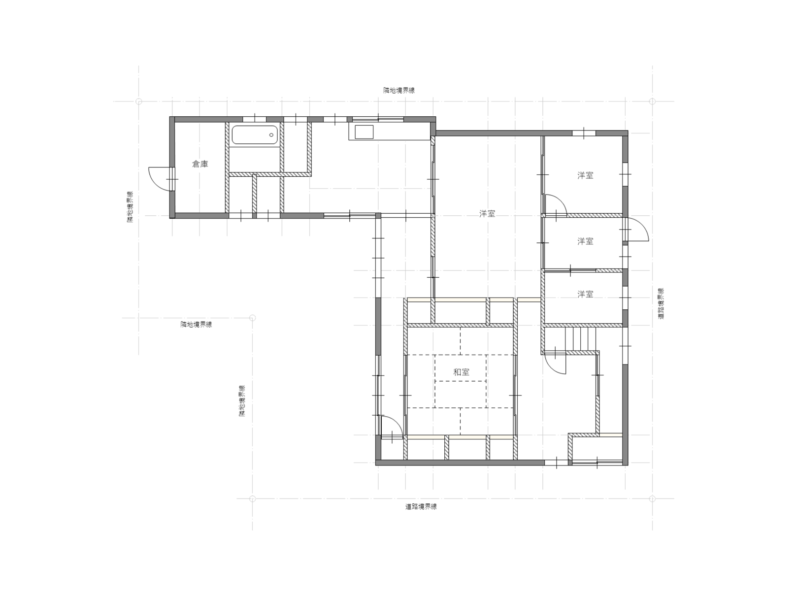
図面
Before

After

担当者コメント

スタッフK

スタッフN
パンが主役でありながら、エジプトらしい装飾を散りばめることで、他店との差別化を図り、「行ってみたい」と思ってもらえる店舗となるよう心掛けご提案させていただきました。
設計Point
- リピートして来ていただくお客様が違う雰囲気で楽しめるように、各客席の印象を違うものにしました。
- エントランスからコンセプトが伝わるように、「自然×エジプト」が伝わる店内としました。
窓を大きくとって、客席からの借景も楽しめるようにしています。 - ブランドコンセプトからご提案。そのブランドコンセプトに合わせてロゴや販促物も制作することで一貫した店舗の印象を作り出しています。
